El proyecto desarrollado por Carolina Martínez Olivares consiste en el diseño arquitectónico y de interiorismo de un edificio de oficinas de uso terciario, concebido como una propuesta integral que aborda de manera conjunta la implantación, la organización funcional, el diseño interior y la definición espacial del conjunto. El trabajo se presenta como una entrega final completa, desarrollada mediante metodología BIM y documentada a través de planos, axonometrías y vistas tridimensionales que permiten una lectura clara del proyecto en todas sus escalas.
Desde el inicio, la propuesta plantea un edificio que combina eficiencia funcional, calidad espacial y una cuidada estrategia de diseño interior, poniendo especial atención en la relación entre espacios de trabajo, áreas comunes y recorridos verticales.

Estrategia de diseño y concepto general
La estrategia de diseño se apoya en una lectura clara del edificio como contenedor flexible de actividad profesional, donde los espacios se organizan de forma racional pero sin renunciar a una identidad arquitectónica definida. El proyecto introduce un lenguaje formal coherente que se mantiene desde las plantas inferiores hasta la cubierta, reforzado por el uso de geometrías suaves, elementos curvos y una materialidad homogénea.

La relación entre interior y exterior se convierte en uno de los ejes del proyecto, especialmente a través del tratamiento de patios interiores, aperturas en fachada y terrazas accesibles, que permiten la entrada de luz natural y mejoran la calidad ambiental de los espacios de trabajo.

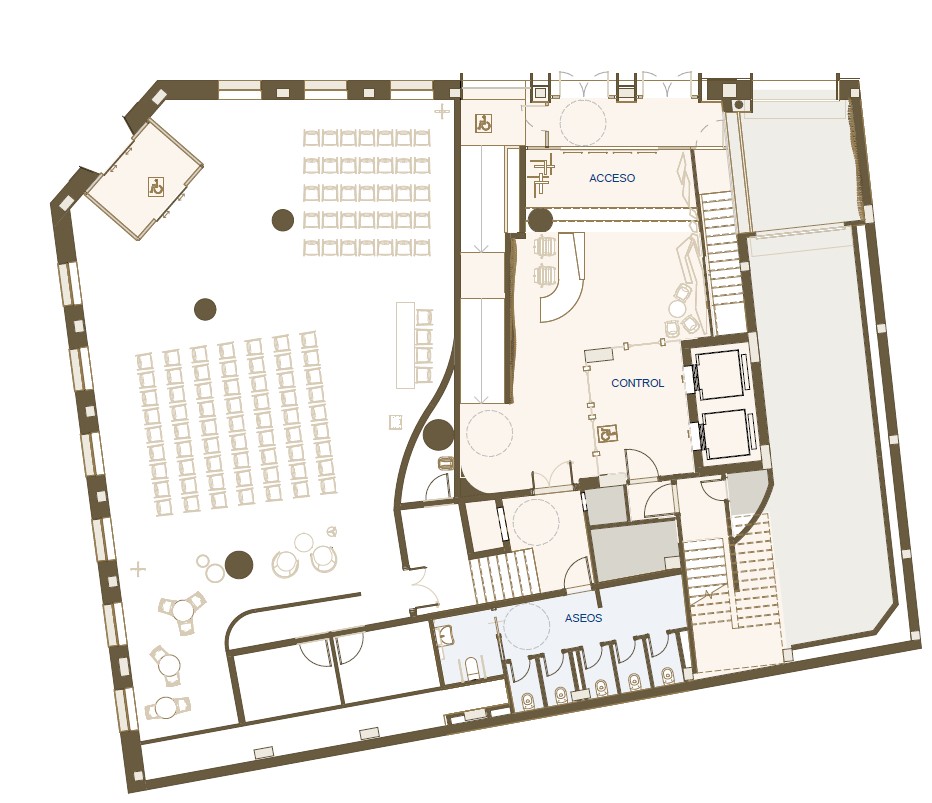
Acceso, recepción y espacios representativos
El acceso principal se concibe como un espacio representativo que marca la identidad del edificio. La propuesta incorpora un sistema de control de accesos, una recepción claramente definida y una zona de espera que combina funcionalidad y confort.

Destacan elementos como:
- Pavimentos de mármol en vestíbulo y núcleos principales.
- Revestimientos de madera lacada en la trasera de recepción, con listones verticales de trazo orgánico.
- Uso de iluminación suspendida para generar uniformidad lumínica y carácter espacial.
- Incorporación puntual de vegetación como recurso ambiental y compositivo.
El salón de actos, situado en planta baja, actúa como uno de los espacios de mayor representatividad del edificio. Su diseño integra soluciones acústicas, control audiovisual y una geometría de falso techo orgánico que refuerza la estrategia formal del conjunto.
Organización funcional del edificio
El edificio se desarrolla en varias plantas sobre rasante y niveles de sótano, resolviendo de forma clara los distintos usos:
- Sótanos: destinados a aparcamiento, instalaciones técnicas, archivo y espacios de servicio. El proyecto define con precisión superficies, circulaciones y capacidad de estacionamiento, incorporando plazas accesibles y espacios para bicicletas y vehículos de movilidad personal.
- Planta baja: alberga el acceso principal, salón de actos, áreas de control y espacios de apoyo.
- Plantas tipo: organizadas en torno a zonas de trabajo abierto, despachos, salas de reuniones, office y espacios comunes. Se prioriza la flexibilidad y la continuidad espacial.
- Plantas superiores y ático: incluyen áreas de trabajo abiertas y terrazas exteriores que refuerzan la relación con el entorno urbano.
- Cubierta: resuelta como espacio técnico y terraza accesible, manteniendo coherencia con el lenguaje arquitectónico general.


La repetición ordenada de criterios espaciales en las plantas tipo facilita la coherencia del modelo BIM y refuerza la lógica constructiva del edificio.
Diseño interior y materialidad
El proyecto demuestra una atención especial al diseño interior, abordando de forma detallada pavimentos, revestimientos, techos e iluminación:
- Pavimentos vinílicos y porcelánicos según el uso y la intensidad de tráfico.
- Falsos techos acústicos con diseños orgánicos en zonas representativas y soluciones más neutras en áreas de circulación.
- Mamparas de vidrio de perfilería mínima para despachos y salas de reuniones, favoreciendo la transparencia visual.
- Tratamiento específico de aseos, con soluciones inclusivas, espacios PMR y cuidado diseño de materiales y acabados.
- Uso de pinturas de arcilla, materiales naturales y vegetación integrada para mejorar la calidad ambiental.


Estos recursos refuerzan el carácter contemporáneo del edificio y aportan coherencia entre arquitectura e interiorismo.
Modelado BIM y documentación en Revit
El trabajo refleja un uso sólido y ordenado de Revit, aplicado tanto a la definición arquitectónica como a la documentación del proyecto:
- Modelado preciso de niveles, plantas y secciones.
- Control de núcleos verticales, circulaciones y espacios técnicos.
- Organización clara del modelo por usos y plantas.
- Generación de axonometrías y secciones 3D que facilitan la comprensión espacial del edificio.
- Coherencia gráfica en planos, vistas y documentación final.
La claridad del modelo BIM permite entender el edificio como un sistema completo, bien estructurado y preparado para su desarrollo técnico.


Valor del proyecto
Este proyecto final constituye un ejercicio completo de arquitectura e interiorismo aplicado a un edificio de oficinas, demostrando la capacidad de la alumna para abordar un programa complejo de forma ordenada, coherente y profesional. El trabajo destaca por su equilibrio entre diseño, funcionalidad y rigor técnico, así como por una presentación gráfica cuidada y consistente.
El resultado es un proyecto bien resuelto, que evidencia un dominio sólido de Revit y una comprensión madura del proceso de diseño arquitectónico y de interiorismo, desde la estrategia conceptual hasta la definición espacial y constructiva final.